Did You Update BERMAD Connect Already? Check It Out

Update BERMAD Connect Today! Check It Out

Blog

Recommended Implementations for Water Pressure Safety Systems in High-Rise Buildings

Buildings &
Construction

The integrity and cost-effectiveness of your high-rise water system is crucial to the safety and satisfaction of the end user. Burst pipes and hard-to-maintain systems—whether for drinking water or fire protection—can be costly and often cause untold damage to property and even threaten human safety.

Many of these problems stem from water pressure fluctuations and can be prevented with proper water pressure control. At BERMAD, we take pride in developing pressure safety systems built to stabilize pressure spikes or drops.

Pressure Safety Systems for Drinking Water

Pressure spikes in drinking water systems often occur when water demand changes from high to low or vice versa over a small time frame. We have addressed this topic in greater depth in a separate post about pressure safety valves in drinking water systems. In this post, we provide information about specific BERMAD pressure safety valves that can safeguard your system while keeping end users satisfied.
The following are examples of this system and its hydraulic control components

The 72S-B2H – a single branch pressure reducing system with “watchdog” back-up, off-peak flow bypass and relief device:

This system is comprised of four key elements connected together into a single compact bundle of pressure control devices.

The main component of this system is the 720 pressure reducing valve stationed inline and downstream of the system. Under normal conditions, it will maintain constant downstream pressure at low to high demands.

For the main PRV, we provide a “watchdog” Pressure Reducing Valve. Positioned upstream of the PRV, this valve will remain fully open as long as the system’s downstream pressure is normal. In case the  pressure rises, the 720-PD-X Watchdog valve will kick into action and regulate the pressure while sending a signal to the BMS, until the problem is fixed and the system is back to normal operation.

The main advantage of the watchdog valve is the fact that it provides a “spear wheel” for water supply and allows the maintenance crew to schedule system downtime and repair to the most convenient time.

For pressure stability, Bermad has integrated an off-peak flows bypass Direct Acting Pressure Reducing Valve which will regulate the small nighttime flow instead of the main PRV.

The last component is a pressure relief device that relieves accruing pressure spikes or unwanted thermal expansion pressure.

As with all control valves, it is highly recommended to protect the system from debris by installing a strainer in the inlet of the system. In this case, the 70F strainer will fit the job best.

Doubled Branched Pressure Reducing System With Dual “Watchdog” Safeguard:

In hospitals or old age homes where water supply must be available 24/7, maintenance downtime is unacceptable. For this reason, all inline appliances must have a parallel redundancy branch to allow service.

In this system, each branch is equipped with independent 720 pressure reducing valve, backed with a “watchdog” 720-PD-X valve. Each branch can work independently, by isolating the other branches in the system. A single 43Q Quick Pressure Relief Valve provides pressure spike relief for both branches and can be maintained without shutting off water supply.

Doubled Branched Pressure Reducing System With Common Off-Peak Flows Bypass

As mentioned in the second example, this system offers full redundancy in order to provide water 24/7. This option comes equipped with two relief valves —  one for each branch — and a common off-peak flow bypass providing low flow regulation if either of the branches is used.

Pressure-Reducing System With 794 – Excessive Pressure Shut-Off Valve

This setup is ideal for buildings where the drainage system is not planned to accommodate pressure relief valves.

In this system, both branches let the water flow through, and pressure is regulated using a 720 pressure reducing valve on each branch.

In the downstream of each PRV there is a 794 Excessive Pressure Shut-Off Valve. These valves remain fully open under normal pressure conditions. If the 720 PRV struggles to regulate the pressure, the 794 valve will hydraulically sense it and will shut off the flow in the line as long as branch pressure is higher than the pre-set value.
If the 794 closes one of the branches, regular safe supply continues thanks to the parallel branch. In addition, an electric signal, given by the closed 794, will notify the BMS that the system needs repair.

Pressure Reducing System With 794 and Low Flow Bypass

As in the above configuration, this system combines a 720 pressure reducing valve and a 794 excessive pressure shut-off valve. The main difference between these two is that a Direct acting PRV provides the two branches with low flow bypass, and it is also secured by its own 794 valve. This configuration offers improved security and a stable water flow despite possible malfunctions.

Two Stage Redundant Pressure Reducing Station With Excessive Pressure Shutoff Valve

This is a full system provided by BERMAD and Victaulic. Pre-engineered, preset, and assembled in our BERMAD factories, this system offers comprehensive support for your drinking water system. Our full redundancy system provides a 720-PD proportional valve for first stage pressure reduction, a main 720 PRV for second stage pressure reduction, and a 794 excessive shut-off valve for extra pressure safety. The best part? It comes ready-made for easy installation on site. Yes, that includes the frame!

Pressure Safety Valves For Fire Protection Water Systems

Your fire protection water system is essential for safeguarding property and ensuring human safety. We discussed the importance of pressure safety valves in fire protection water systems in greater depth in the pressure safety valves for fire protection post.

The following are examples of applications of these valves in fire protection systems:

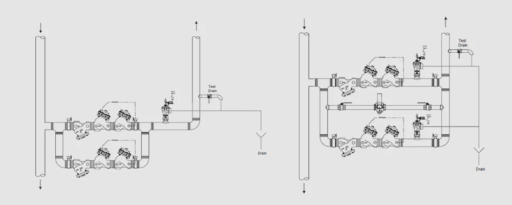
Redundant and backed-up pressure reducing system with 42T­­ PRV

In this fire protection pressure reduction system, we use dual installation of 42T pressure reducing valve where one valve modulates to the desired pressure, while the other acts as an emergency back-up.

Each branch of the system is sized so it can deliver the full fire zone demand, even when the adjacent branch is under inspection or service, thus allowing maintaining the system while still providing full fire water cover to the building.

A small flows branch is connected in parallel to both branches so it can provide minimal flow regulation using the 720 UL approved PRV.

Downstream of each branch, a 430 pressure relief valve with UL and FM approvals is installed, which  is responsible for discharging excess pressure in case of abrupt flow changes or if the fire water line experiences thermal expansion.

Many More Optional Systems

As presented in the above examples, pressure reducing systems may come in a variety of configurations, taking into account the system needs, installations space and budget.  Bermad’s engineers  offer a hydraulically engineered solution customized to your specific needs.

Need Pressure Safety Valve Advice? We Can Help!

Determining the best pressure safety valve for your system depends on many factors. BERMAD engineers are available to offer technical expertise when you need it. To get in touch with a BERMAD representative who can help you find the ideal solution to protect your high-rise water systems and the consumers who use them, contact us here.

Integrated pressure reducing system with the watchdog valve

Latest Posts

Need more details?

Get More Information

Related Products

Explore BERMAD’s advanced solutions designed to optimize performance, protect systems, and deliver reliable control across diverse water applications worldwide.